Location de particulier à particulier - Location casa94 à Porticcio
Le centre nautique - Porticcio

Location d'une Casa d'Oro à Porticcio

La terrasse-lacasa94

villa mitoyenne La casa 94

classée meublé de tourisme 3 étoiles pour 6 personnes

Située dans les Hauts de la résidence du golfe.
à 2 km de la plage de Porticcio et des commerces.
avec une très belle vue sur le golfe d'Ajaccio.

Description

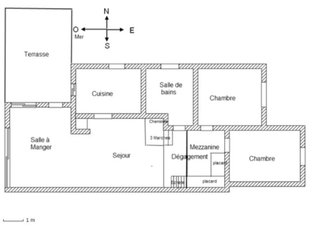
Villa de 70 m² avec un petit jardin,
1 chambre avec 1 lit en 140
1 chambre avec deux lits en 90
Canapé BZ pour 2 personnes dans le séjour.
Grand salon avec canapé d'angle et TV HD
Cuisine integrée complète avec lave vaisselle...
lave linge dans la buanderie
Terrasse ombragée avec barbecue, très calme, face à la mer.
Equipée pour 6 personnes et un bébé

Ne convient pas aux personnes à mobilité réduite.

Vue sur le golfe D'ajaccio depuis le séjour , la cuisine et la terrasse.


la vue sur le golfe d Ajaccio
Plan de la casa94